Mason Martin Homes – Home Plans
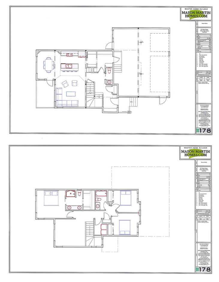
Along with being a custom builder, Mason Martin Homes offers a wide range of home plans that can be built in all communities. All of our home plans can be modified and customized to your personal tastes.
Chances are your not going to want this exact plan but if you like the general layout of the plan our designer will work with you to make it the plan you want for your new home. Choose from Bungalow, Bi-Level and Two-Story plans.


















































































